Préciser votre budget :
OK
Préciser les pièces :
OK
Préciser les chambres :
OK
Préciser la surface :
OK
Préciser la surface :
OK
Plus de critères
Retour aux annonces

A vendre Appartement 3 pièces Saint-Paul (97460) - Réunion

264 869 € FAI* soit 4 069 € /m²
miniature miniature miniature miniature miniature
encart bt credits financements

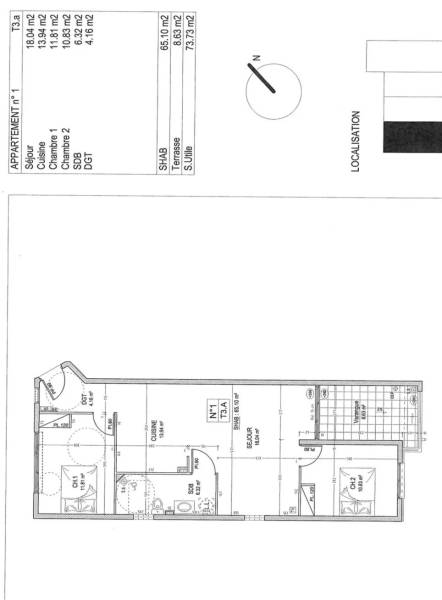
EP3419 – APPARTEMENT T3 – 65,10 m² – SAINT-PAUL 97460

Situé dans la commune très recherchée de Saint-Paul (97460), cet appartement de type T3 d’une surface de 65,10 m² bénéficie d’un emplacement privilégié au cœur de l’Ouest de l’île.
Ville emblématique de La Réunion, Saint-Paul séduit par sa qualité de vie et son dynamisme économique. Elle offre :
✔ un accès rapide aux plages de l’Ouest et à Saint-Gilles-les-Bains
✔ une proximité immédiate avec Le Port et Saint-Denis
✔ de nombreux commerces, écoles et services
✔ un cadre de vie agréable entre littoral, marché forain et espaces naturels
Un secteur particulièrement recherché pour une résidence principale comme pour un investissement locatif.
APPARTEMENT T3 – 65,10 m²
Cet appartement fonctionnel et lumineux est situé au sein d’une résidence en copropriété.
Composition
Séjour spacieux
Cuisine
Deux chambres
Salle de bains
WC
L’agencement des pièces offre confort et praticité au quotidien.
Les atouts du bien
✔ Situation privilégiée dans l’Ouest de l’île
✔ Proximité immédiate des commodités
✔ Accès rapide aux axes principaux
✔ Appartement idéal pour habiter ou investir
Investissement locatif – Secteur Saint-Paul
Le marché locatif de l’Ouest reste très dynamique avec une forte demande locative, notamment pour les appartements de type T3.
Estimation de loyer
Surface : 65,10 m²
➡ Loyer estimé : 1 100 € à 1 200 € / mois
➡ Revenus locatifs annuels estimés :
13 200 € à 14 400 €
Un rendement attractif dans un secteur à fort potentiel locatif et patrimonial.
Un bien idéal
Cet appartement constitue :
✔ un excellent investissement locatif sécurisé
✔ une résidence principale confortable
✔ un bien patrimonial dans l’Ouest de La Réunion
💰 Prix : 264 869 € – Honoraires charge vendeur
📌 Référence annonce : EP3419
Appartement vendu libre de toutes occupations , vendu dans une copropriété de 12 lots
Montant moyen annuel de la quote part de charges courantes: 1512€
Aucune procédure en cours menée sur le fondement de l'article 29-1 A et 29-1 de la loi n° 65-557 du 10 juillet 1965 et de l'article L. 615-6 du CCH
Annonce proposée par :
Eve PARIS – Négociatrice en immobilier
📞 [coordonnées réservées]
📱 [coordonnées réservées]
📧 [coordonnées réservées] />CABINET LEMERLE ET RIVIERE by Kazanou
45 bis rue du Four à Chaux
97410 Saint-Pierre
Informations sur les risques :
www.georisques.gouv.fr
Nos honoraires :
www.lemerle-riviere.re/honoraires.pdf

Caractéristiques de cet appartement 3 pièces à vendre à Saint-Paul (97460)

  • Nombre de pièces : 3 pièces
  • Surface habitable : 65.1 m²
  • Référence de l'annonce : EP-3419
  • Prix de vente : 264 869 € FAI (Frais d'Agence Inclus)*
encart bt credits financements

Cette annonce immobilière vous est proposée par :

LEMERLE & RIVIERE

Ce bien vous intéresse ?
Contactez l'agence dès aujourd'hui...

En savoir plus sur l'agence LEMERLE & RIVIERE

Cette agence immobilière propose à ce jour 26 biens à la vente et 10 biens à la location sur Immodesiles.fr.

Le barème d'honoraires de l'agence ne nous a pas été transmis.

Autres appartements à vendre à Saint-Paul (97460), susceptibles de vous intéresser

a vendre - saint-paul la réunion - grand pourpier- appartement 7 A vendre - saint-paul la réunion - grand pourpier- appartement Saint-Paul (97460) 1 pièce, 30 m² hab. SAINT PAUL - DOMAINE DU GRAND POURPIERS. INVESTISSEMENT LOCATIF ;ARH Immobilier a le plaisir de vous présenter à la vente ce spacieux appartement de type T1 Bis de 30 m² habitables, complété par une varangue de 9 m².Situé au 1er et dernier étage d'une petit bâtiment calme et de standing co... Réf. 2558-ARHArh Immobilier 135 000 € soit 4 500 € /m² saint gilles les bains (mont-roquefeuille) - appartement t2 avec jardin et garage 8 Saint gilles les bains (mont-roquefeuille) - appartement t2 avec jardin et garage Saint-Paul (97460) 2 pièces, 1 chambre, 45 m² hab. T2 avec jardin et garage attenant Mont-Roquefeuille, Saint-Gilles-les-Bains Situé dans le quartier recherché de Mont Roquefeuille à Saint-Gilles-les-Bains, cet appartement T2 de 45,40 m2 vous séduira par son confort, sa fonctionnalité et ses prestations rares. Au sein d’une résidence r... Réf. 418Amicasa 350 000 € soit 7 709 € /m² t1 à la saline les bains à 4 minutes de la plage de trou d'eau 7 T1 à la saline les bains à 4 minutes de la plage de trou d'eau Saint-Paul (97460) 1 pièce, 38 m² hab. T1 à la Saline les Bains à 4 minutes de la plage de Trou d'eau L'agence Sixième Avenue de Saint-Denis vous propose un appartement T1 neuf de 38 m2 + Varangue de 10.99 m2 avec 2 places de parking, idéalement situé dans une résidence de qualité au coeur de la Saline les Bains, à seulement 4... Réf. lot1-324Sixième Avenue 395 000 € soit 10 395 € /m² magnifique appartement t4 saint paul 3 Magnifique appartement t4 saint paul Saint-Paul (97460) 4 pièces, 3 chambres, 84 m² hab. Appartement T4 de 84m2 et 17m2 de varangue dans une magnifique résidence situé idéalement sur St Paul. Cette résidence, offre un cadre privilégié avec accès rapide à la plage de Boucan Canot, au centre-ville et à la plus grande piste cyclable de l'île. Son architecture contemporaine mêle ... Réf. 186/2025D&b Capital 512 000 € soit 6 095 € /m² appartement 2 pièces neuf à l'Étang saint-paul 8 Appartement 2 pièces neuf à l'étang saint-paul Saint-Paul (97460) 2 pièces, 1 chambre, 48 m² hab. Situé dans le quartier recherché de l'Étang à Saint-Paul, ce programme immobilier neuf propose des appartements du T2 au T4, conçus pour offrir confort, luminosité et qualité de vie. La résidence, à taille humaine, bénéficie d'une architecture moderne et de beaux espaces de vie ouverts s... Réf. 7596-03-050326Prmi Nord/est 274 000 € soit 5 715 € /m²