Préciser votre budget :
OK
Préciser votre budget :
OK
Préciser les pièces :
OK
Préciser la surface :
OK
Préciser la surface :
OK
Plus de critères
Retour aux annonces

A louer Local commercial Saint-André (97440) - Réunion

2 102 € cc / mois*
miniature miniature

A louer local commercial ou professionnel avec parking en centre ville de Saint-André

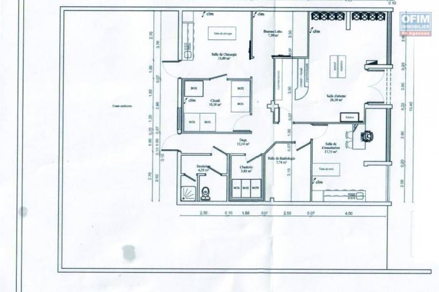
Ofim de Saint-André à le plaisir de mettre à la location ce local de 102 m² environ situé sur l'avenue Ile de France avec 11 m/l de façade avec vitrines donnant sur la rue. Ce local possède 3 place de parking privative + 1 place handicapé. Local au normes ERP et climatisé pour une bonne partie ce local a été agencé à l'intérieur pour une ancienne clinique vétérinaire. A l'arrière une cour privative de 97 m² vient compléter ce descriptif. Très bon emplacement commercial sur axe très passant à proximité immédiate du centre ville. Loyer : 2102,68 € Pour toutes informations ou visites : Jérémie RIVIERE - [coordonnées réservées] 2A71851, Numéro de mandat: 562 Tél. commercial: [coordonnées réservées]

Caractéristiques de ce local commercial à louer à Saint-André (97440)

  • Surface : 102 m²
  • Référence de l'annonce : 562

Cette annonce immobilière vous est proposée par :

OFIM

Ce bien vous intéresse ?
Contactez l'agence dès aujourd'hui...

En savoir plus sur l'agence OFIM

Cette agence immobilière propose à ce jour 90 biens à la vente et 33 biens à la location sur Immodesiles.fr.

Le barème d'honoraires de l'agence ne nous a pas été transmis.

Autres locaux commerciaux à louer à Saint-André (97440), susceptibles de vous intéresser

a louer local professionnel  neuf de 33.86 m² 2 Local commercial 1 pièce - Terrain 240 m² Saint-André (97440) 1 pièce, 5 chambres, 34 m², terrain 240 m² KLEBERT TEKA IMMO vous propose louer sur Saint-Andr, un local professionnel neuf de 33,86 m2, compos dune pice principale, avec un espace sanitaire.En raison de sa situation sur une rue frquente, vous bnficierez d'une visibilit optimale pour votre activit.\nLoyer mensuel : 1000 , pas de charges . D... Réf. 6503Teka Immobilier 1 000 € cc / mois lakaz société immobilière vous propose en location ce local commercial ou professionnel de 192 m2 idéalement s 4 Local commercial Saint-André (97440) 192 m² LaKaz Société Immobilière vous propose en location ce grand local commercial ou professionnel de 192 m2 idéalement situé au coeur de Saint-André. Ce local comprend un très grand plateau amménageable pour le preneur. Parking sous-sol dédiéLoyer mensuel : 3 000 €Dépôt de garantie (DG) : ... Réf. 2275Lakaz 3 000 € cc / mois a louer local commercial 300m²  st andre 6 Local commercial 1 pièce - Terrain 900 m² Saint-André (97440) 1 pièce, 3 chambres, 300 m², terrain 900 m² LOUER : Local Commercial de 300m dans la Zone Commerciale de la Cocoteraie Emplacement : Zone commerciale de la CocoteraieCaractristiques du Local :Superficie : 300 mLoyer : 5600 / moisDisponibilit : Immdiatequipements :Climatisation : Local entirement climatis pour un confort optimalAmnagement in... Réf. 6402Teka Immobilier 5 600 € cc / mois local professionnel saint andre 260 m2 8 Local commercial Saint-André (97440) 260 m² Situé sur la Rocade Sud à Saint-André, ce local professionnel de 260 m² réparti sur deux niveaux offre de grands volumes et des espaces adaptables selon votre activité. - Rez-de-chaussée (environ 180 m²) : - Une grande pièce de 70 m² avec coin cuisine, - 5 autres pièces de 10 à 20m2 ada... Réf. locAlexandreG6519Ha.immo 3 000 € cc / mois a louer local  commercial de 27 m2  au centre ville saint andré 2 Local commercial 2 pièces - Terrain 600 m² Saint-André (97440) 2 pièces, 1 chambre, 27 m², terrain 600 m² Klbert vous propose la location, un local commercial de 27 m dans le centre ville de Saint Andr, l'avenue de bourbon . Idal pour bureaux ou commerces. Tous les types de commerce sont accepts. Disponible ds maintenant.\nLoyer mensuel :850 euros TTC dont 50 forfait taxe ordure mnagre, Dpt de garantie... Réf. 6141Teka Immobilier 850 € cc / mois