Préciser votre budget :
OK
Préciser les pièces :
OK
Préciser les chambres :
OK
Préciser la surface :
OK
Préciser la surface :
OK
Plus de critères
Retour aux annonces

A vendre Terrain 217 m² Saint-Pierre (97410) - Réunion

232 000 € FAI* soit 1 069 € /m²
miniature miniature miniature miniature miniature miniature
Empruntez aux meilleures conditionslogo meilleur taux

chez PRMI / Terrain constructible "Quartier pêcheur" Terre-Sainte (97410)

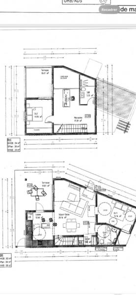
Emplacement très recherché : "Quartier pêcheur" Terre-Sainte ! Résidentiel et calme, proche de la promenade des Alizés, de la plage, des restaurants, des écoles et bien sûr des commerces du centre ville de Saint-Pierre ! Terrain de 217 m2 : plat, nu, à bâtir. Celui-ci bénéficie déjà d'un permis de construire obtenu en 2022. Pour y édifier une maison individuelle de 92 m2 (habitable) de type R+1. Voir plan + photos. -- IDEAL POUR UNE RESIDENCE PRINCIPALE / SECONDAIRE / LOCATION SAISONNIERE -- Informations complémentaires : - borné (via géomètre) - non viabilisé (mais raccordements proches y compris au tout à l'égout) - non clôturé -exposition (nord) ps : pas de copropriété, pas de lotissement et pas de servitude ! Visite possible avec le spécialiste de Saint-Pierre : Arnaud TREMOULET. Tél : [coordonnées réservées] ou [coordonnées réservées] Mail : [coordonnées réservées] Honoraires à la charge du vendeur. Bien non soumis au DPE. Les informations sur les risques naturels auxquels ce bien peut-être exposé sont disponibles sur le site : georisques.gouv.fr

Caractéristiques de ce terrain à vendre à Saint-Pierre (97410)

  • Surface habitable : 217 m²
  • Surface du terrain : 217 m²
  • Référence de l'annonce : 7414AT
  • Prix de vente : 232 000 € FAI (Frais d'Agence Inclus)*
  • * Honoraires à la charge du vendeur
Empruntez aux meilleures conditionslogo meilleur taux

Cette annonce immobilière vous est proposée par :

PRMI Sud/Ouest

Ce bien vous intéresse ?
Contactez l'agence dès aujourd'hui...

En savoir plus sur l'agence PRMI Sud/Ouest

Cette agence immobilière propose à ce jour 54 biens à la vente sur Immodesiles.fr.

Vous pouvez consulter le barème d'honoraires de l'agence.

Autres terrains à vendre à Saint-Pierre (97410), susceptibles de vous intéresser

saint pierre - 97410 -terrain plat bien proportionnÉ - potentiel indÉniable 2 Terrain 379 m² Saint-Pierre (97410) terrain 379 m² SAINT PIERRE 97410 - PRIX ATTRACTIF !! - Venez découvrir ce terrain plat et bien proportionné d'environ 379 m2, offrant un potentiel indéniable. Situé dans un environnement verdoyant et calme, ne manquez pas cette belle opportunité. Vue montagne. Tout à l'égout. À VISITER AU PLUS VITE ! Ref ... Réf. 25-5206Le Forum Immobilier 135 000 € soit 356 € /m² grands-bois - parcelle viabilisÉe de 382m2 : kaisary 2 2 Terrain 382 m² Saint-Pierre (97410) terrain 382 m² À la recherche d'un terrain prêt à accueillir vos rêves de maison dans le sud de l’île ? Découvrez nos parcelles prêtes à construire nichées aux portes de Saint-Pierre (direction sud-ouest). La résidence Kaisary vous promet une qualité de vie incomparable. Idéalement situé dans le qua... Réf. 762-2-19L'agence By Cbo 187 000 € soit 490 € /m² a vendre - terrain a partir de 494 m2 environ - saint-pierre - a partir de 159 912 € 5 Terrain 304 m² Saint-Pierre (97410) terrain 304 m² A VENDRE - Le Cabinet Habilis vous propose à la vente trois terrains à prendre dans une plus grande parcelle de 1 714 m2 environ, situé à SAINT-PIERRE dans le quartier de la Ligne Paradis. Ce terrain est idéalement situé en zone UG (zone urbaine générale) selon le PLU, offrant des possibilit... Réf. 4530-ERA-NK-2Cabinet Habilis 109 880 € soit 361 € /m² grands-bois - parcelle viabilisÉe de 307m2 : kaisary 2 8 Terrain 307 m² Saint-Pierre (97410) terrain 307 m² À la recherche d'un terrain prêt à accueillir vos rêves de maison dans le sud de l’île ? Découvrez nos parcelles prêtes à construire nichées aux portes de Saint-Pierre (direction sud-ouest). La résidence Kaisary vous promet une qualité de vie incomparable. Idéalement situé dans le qua... Réf. 762-2-04L'agence By Cbo 153 000 € soit 498 € /m² saint pierre 97410 - parcelle À bÂtir - bon potentiel - bien proportionnÉe - quartier verdoyant 1 Terrain 360 m² Saint-Pierre (97410) terrain 360 m² SAINT PIERRE 97410 - Située en Zone Uf, venez découvrir cette parcelle plate et arborée, à bâtir d'environ 360 m2. Bon potentiel et bien proportionnée, elle ne manquera pas d'attirer votre attention. Située dans un secteur prisé et verdoyant, n'hésitez plus et venez la visiter. À VOIR ! Re... Réf. 24-5139Le Forum Immobilier 115 000 € soit 319 € /m²